这两年在家居圈,智能生活时常被提及,
它究竟能给我们的生活带来哪些便捷?
今天家居君要分享一个独居男孩的智能之家!
全屋安装智能系统:
智能窗帘、智能烟机、智能灯光等等...
视频来自:理居设计
看完他家你一定会感叹:
如今的男孩们也太会生活了叭
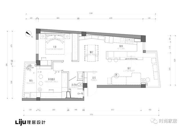
房屋信息
面积:79㎡
户型:2室
坐标:福建 厦门
装修花费:40w
# 改造前
房子是2003年建成的传统步梯房,采光普通,室外景观比较安静,室内狭小杂乱,同时面临着厨房面积小、没有玄关、主卧空间不规整等多个问题。
# 改造重点
结合房屋实际情况,设计师决定将房屋推拆成毛坯房全部重装。
· 厨房墙体拆除做开放式,客餐厨形成LDK布局,延伸出双人吧台用于调酒;
· 封闭阳台填充进客厅,改造成音乐角,满足弹唱兴趣;
· 入户设计了隔断,形成半遮挡玄关;
· 次卧改成多功能日式榻榻米房+隐形床设计,一房两用;
· 阳台改成袖珍的日式小庭院,选用洗烘一体机解决衣服晾晒问题;
· 原始餐边柜区域有明显阴阳角,设计师做了一个倾斜对角造型,让餐厅既有围合感又完美隐藏了小缺点;
· 全屋都安装了智能家居系统,让生活便捷高效。
# 改造亮点
全屋使用了小米智能家居系统,通过网关+APP场景预设+感应器+人机交互来实现。包括防盗系统、灯光系统、影音系统、生活系统等。可以说是把智能用到了极致。
01 / 玄关
储物+通透感
进门左边屋主定制了一面灰色的悬浮式鞋柜,配以局部黑色的壁龛,线条利落硬朗,正面是隔断,因为屋主喜欢有点透光的感觉,所以在隔断中间做了个五线谱蝌蚪造型的镂空,既避免了一眼看穿,又多了探究空间的意味。
隔断下方设计了一个铁盒子作为支撑,有种一块石头承住整个隔断的感觉,也在视觉上更显通透。
鞋柜下方的悬空处,能够放下五到六双当季通勤鞋和拖鞋,其余收进柜内,避免了空间的凌乱感。
鞋柜的储物量很大,使用按压式的开合方式,隐形了把手,造型极简又有整体感。壁龛处可以放些小的摆件装饰,日常小物也可以一并归纳在这里。
右手边装了一块跟门等高的黑色洞洞板,上面的收纳配件可以自由调节,存放出门穿戴的衣服、帽子,还能用来收纳雨伞,炫酷又实用。
地板的设计很有趣,设计师利用木地板和灰色瓷砖两种材质拼接,把餐边柜的踢脚线直接和地板连成一体,营造流淌的动感。
木地板拼接瓷砖tips:
由于选用了新的铺设方式,所以对技术有一定要求。瓷砖需要满胶铺贴,避免木地板膨胀,中间用环氧树脂黑色美缝剂,填缝之后很具观赏性。从玄关到客餐厅无高度差无门槛石,方便扫地机器人行走。
02 / 客厅
集音乐吧、咖啡馆、餐饮区于一体的多功能区
客厅是集音乐吧+咖啡馆+酒吧+餐饮区+私人影院的多功能体区,全屋智能灯光,聚光灯可以随焦点聚焦,营造不同的场景模式。立式空调和新风机隐藏在阳台,热空气进来空调可以迅速冷却。可以说家里的精华都浓缩在这里了。
长条窗犹如画框,将厦门四季引入室内,窗户是双层中空断桥玻璃,配了智能电动帘,可以根据日升日落,或者语音指令自动关闭,完美实现“懒人”的理想生活。
屋主喜欢音乐,在靠窗的区域塞了7台音箱、低音炮、功放机、卡拉OK机、效果器、乐鼓、吉他、谱架……,形成一个音乐角,在这里跟喜欢音乐的朋友一起弹吉他、唱唱歌,有种登台演出的仪式感。
窗边还放了一个落地书柜,既有收纳功能,又能当凳子用。底下放了音响、书籍以及饮料等,收纳力MAX。
L型的布艺沙发功能远超三人位沙发,还能拆分出一个贵妃榻,随时可以慵懒的躺下。来自ClassiCon 的调节边桌造型简单却足够经典,小巧的体积更具有灵活性,镀铬钢+玻璃的材质也丰富了空间层次感。
半高电视柜作为厨房和客厅之间的分隔。
屋主希望电视既能够遮挡水槽,又能留出一定空间供客厅和厨房两边共同使用。因此设计师先确定了沙发尺寸,然后确认电视下方需要放置的设备,通过已知的尺寸确定电视柜、水槽的位置。由此便获得了这个半高的电视柜。
电视柜是根据沙发高度定制的,用于放置小米盒子、机顶盒、PS4和switch手柄,满足屋主看电视、玩游戏的生活需求。
03 / 厨房
开放式设计,交互感更强
厨房和吧台都做了开放式设计。好客的屋主经常邀请朋友来家里聚会,所以客餐厅和厨房更像一个开放式的聚会厅。一边下厨,一边聊天,也方便朋友打下手,其乐无穷。
水槽设置在电视后方,旁边是切菜区和灶台。各种清洁用品塞在吧台底下,动线刚好形成一个闭环,转身之间就能完成所有操作。
厨房布局设计了两版才确定,按照取菜→洗菜→切菜→炒菜→装盘→上桌的动线来完成。
台面设计了两个高度,水槽区的台面要高一些,烹饪区的台面要低一些。这样切菜洗碗腰不累,炒菜胳膊也不累。
厨房也是智能化的!有烟感功能,油烟机感应式挥手启动、感应龙头出水、水槽具有超声波清洗功能,主要用来清洗果蔬,不用自己动手,就能洗的干干净净。
吧台正对开放式的酒架,屋主强烈要求做出开放式设计,方便一眼就能看到自己的心头好。
酒杯一字型倒挂,方便拿取。吧台周围设计了灯光,夜里制作鸡尾酒很有氛围,底下做了抽屉,用来放调酒用品,收纳和动线都很完美。
厨房收纳系统
屋主是个细节控,在装修前期已经规划好了大部分电器尺寸。厨房的小型家电至少有10个以上,所以是个不折不扣的高集合型厨房。
安装垃圾处理器,需要提前规划好走向,埋好管道。日常产生的菜叶果皮、剩饭“一冲没”,省心省力。
每天炒完菜从灶台下方拉篮拿出碗碟来盛菜,吃完饭把剩饭倒水槽里进行垃圾处理。碗碟交给洗碗机,各类杂事家务活基本交给机器处理,能不动手就不动手。
04 / 餐厅
展示+实用+氛围,一个都不少
紧邻厨房的餐厅,餐桌长度足以坐4-6人,搭配了三种不同造型的椅子,从色彩和设计上,与整个空间的搭配恰到好处。
餐厅对面,将咖啡馆的logo做成了霓虹灯牌,“sit, feast on our life”是改自德里克•沃尔科特的诗句,译为“坐下,尽享我们的生活”,放在餐桌边再合适不过。
洞洞板+隔板上墙,将屋主的收藏和咖啡杯茶具安置的明明白白。
屋主喜欢收藏和堆积,因为总觉得“以后会用到”“有特殊意义”,以至于东西越来越多,于是利用餐边柜的墙面做了一个展示区。下方的台面上放了胶囊咖啡机和早餐机,完美的快手早餐就从这里开始。
05 / 书房
兼具洗衣房、客房的书房,还藏有日式枯山水
书房也拥有超多功能附体:会客、办公、读书、客卧,洗衣房等多种功能,最让人诧异的是,屋主和设计师将日式枯山水搬进4㎡的洗衣房,别有一番韵味,大大满足了屋主对于日式庭院的喜爱。
下翻床的设计足够两个人睡,靠背、床前灯、置物架一应俱全,房间地面做了抬高设计,但下翻床特意没做抬高,这样收起床头时是嵌入式的感觉,下翻时床就有空间可以内退进柜子里,从而缩短了床占据地面的长度。
书桌一角,做了便于收纳文具和书籍的三层隔板,A4大小的书籍可以平放。隔板上摆放的世界地图是朋友送的,只需要用硬币刮去铝箔,就可以把去过的国家标记颜色,很有意思。
兼具洗衣房和喝茶功能的阳台区域,像是这个小家的“世外桃源”,令人身心沉静不被打扰,再加蒲团、字画、纸质灯的融入,禅意十足。
拉下来效果如图
洗烘一体机藏于一旁,吊柜和层板都用竹帘遮起来,统一阳台风格。
06 / 卧室
实用+美观兼具
卧室不大,只有11㎡左右,所以用定制家具来进行高效的空间利用。靠窗的位置做了嵌入式梳妆台,还特意加宽了镜面厚度、台面退进,再加两条长形壁灯,大大方便了近视眼男生的生活日常。
卧室的整个氛围用色都较柔和,在设计上也结合一些酒店的设计,以保证屋主的睡眠质量。
07 / 卫生间
智能+细节,让如厕幸福感加倍
洗漱区装了台下盆,镜柜可以收纳日常用品。下方还增加了一个实木板作为收纳补充。
洗漱区和马桶区之间装了雾化玻璃,洗澡前打开开关就能自动雾化,私密与通透兼顾。
卫生间安装了智能马桶和冲洗枪,从源头解决清洁问题。马桶后方安装了电热毛巾架,提升生活幸福感。
淋浴区安装了云米的电热水器和小米yeelight的集成排风,冬天暖和,夏天不闷。
淋浴房刷防水乳胶漆,底边下沿做石材踢脚线,顶上是防水石膏板。隐藏式长条形地漏,排水、防臭效果一流。
独居男生,用智能解放双手,空间布局设计也是细节满满。屋主说“家,是以我为主题的展览馆”,智能家居系统、开放式厨房、音乐角等设计让空间有了自己的个性。正所谓家,不需要多大面积,不需要多昂贵的家具,也不需要固定在某种风格之下,往往能做到鲜明且有个人特色即可。
本案来自理居设计:
理居曾获得红星美凯龙M+高端设计大赛、中国家装设计百强等近40项奖。对理居来讲,好的设计不只停留于表面的美与高级,而是重视对居住者真实感受的关照。
